Описание
HL62.1/2
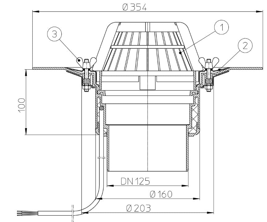
Кровельная воронка, с электрообогревом, с листвоуловителем, с теплоизоляцией, с обжимным фланцем из нержавеющей стали, с вертикальным выпуском DN 125
Кровельная воронка, с электрообогревом, с листвоуловителем, с теплоизоляцией, с обжимным фланцем из нержавеющей стали, с вертикальным выпуском DN 125