Посёлки таунхаусов являются хорошим миксом городской квартиры и загородного дома. Расскажем, как в одном из таких посёлков мы строили навес над террасой. Идея заключалась в создании конструкции, которая служила бы навесом и верандой, а на её плоской кровле обустроить просторную зону отдыха.
Работа началась с создания дизайн-проекта. Саму концепцию и цветовые решения предложил заказчик. После согласования внешнего вида мы перешли к проектированию конструкций навеса. Сечение и расположение несущих элементов должны были эстетично выглядеть и выдерживать достаточные ветровые и снеговые нагрузки.
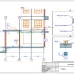
В качестве основных несущих конструкций был выбран деревянный клееный брус. Столбы и балки из обычного, даже хорошо просушенного бруса, со временем могут растрескаться или деформироваться от перепадов влажности и температуры. В скрытом пространстве это не заметно, но в нашем случае – важно!
На объект брус прибыл в изделиях по 9 м и нарезался в размер на стройплощадке. Деревянные поверхности покрывали в несколько слоёв: антисептирование, грунтовка и 2-х слойная покраска составами TEKNOS. Материалы этой финской компании являются настоящей находкой, дорогостоящей, но эффективной во всех отношениях.
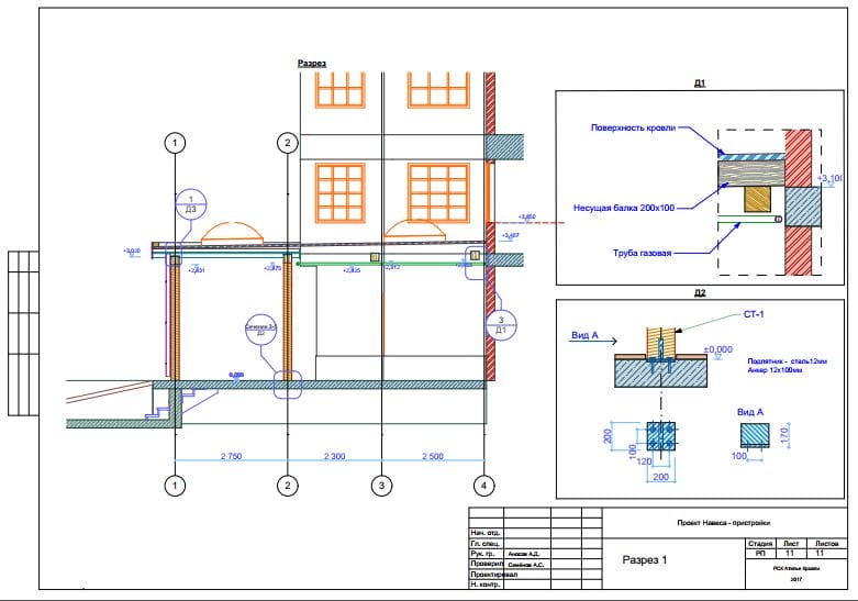
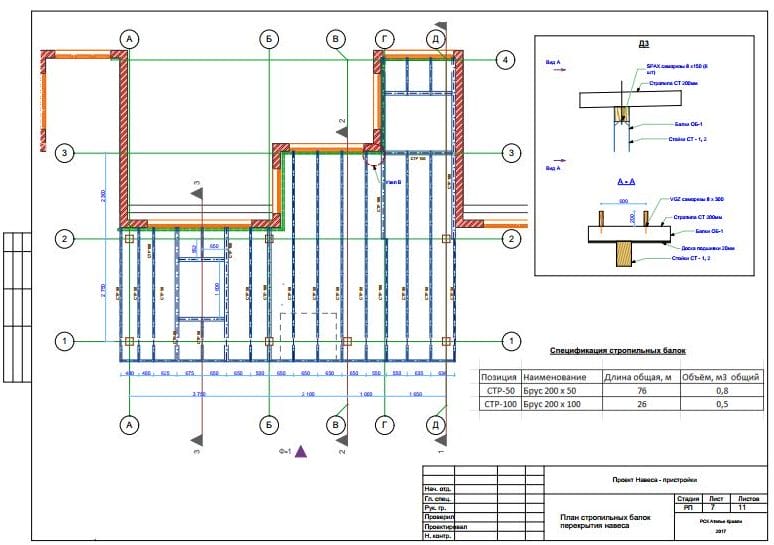
Связать между собой столбы, балки и стропила можно множеством способов, но было выбрано скрытое крепление с помощью алюминиевых кронштейнов и стальных винтов RothoFixing. Точная геометрия балок и высокое качество крепежа сделали процесс сборки деревянных конструкций высокотехнологичным и надёжным.
На стропила – лаги мы уложили настил из шпунтованной половой доски толщиной 32мм, которая будет являться потолком и перекрыли сверху влагостойкой фанерой ФСФ т.15мм, одновременно сформировав уклоны к угловым водосточным воронкам. Для дополнительного естественного освещения были установлены зенитные фонари VELUX, размером 1,2 х 1,2м,
Для гидроизоляционного слоя мы применили ПВХ мембрану Logikroof 1,5мм. Это решение связано с тем, что для её монтажа не требуется открытый огонь как для рулонных материалов на битумной основе, а светло-серый цвет не будет летом нагреваться. Угловые водоприёмные воронки тоже из ПВХ, что позволяет приваривать мембрану непосредственно к воротнику воронки. Надёжная технология сварки швов горячим воздухом и хорошие технические показатели материала позволяют нам давать гарантию на выполненные работы от 5 лет. Таким образом мы получили плоскую кровлю с парапетами и организованным водостоком. В дальнейшем на поверхности можно собрать настил из декинга или разложить искусственный газон с шезлонгами и расстениями в ящиках.




















